GET THE APP

Impact of Indoor Physical Environment on Employee Productivity after Pandemic Period the Case of Arab Bank Jordan
Journal of Civil and Environmental Engineering

Journal of Civil and Environmental Engineering

ISSN: 2165-784X

Open Access

Research Article - (2020) Volume 0, Issue 0

Impact of Indoor Physical Environment on Employee Productivity after Pandemic Period the Case of Arab Bank Jordan

Mohammad Mahmoud Mraweh Alkhatib1 and Parastoo Pourvahidi2*
*Correspondence: Parastoo Pourvahidi, Department of Architecture, Faculty of Fine Arts, Design and Architecture, Cyprus International University, Turkey, Tel: + 00905338648426, Email:
1Department of Interior Architecture, Faculty of Fine Arts, Design and Architecture, Cyprus International University, Turkey
2Department of Architecture, Faculty of Fine Arts, Design and Architecture, Cyprus International University, Turkey

Received: 07-Sep-2020 Published: 20-Nov-2020 , DOI: 10.37421/jcde.2020.10.369
Citation: Mraweh Alkhatib, Mohammad Mahmoud and Parastoo Pourvahidi. “Impact of Indoor Physical Environment on Employee Productivity after Pandemic Period the Case of Arab Bank Jordan.” Civil Environ Eng 10 (2020): 369. doi: 10.37421/jcde.2020.10.369.
Copyright: © 2020 Alkhatib MMM, et al. This is an open-access article distributed under the terms of the creative commons attribution license which permits unrestricted use, distribution and reproduction in any medium, provided the original author and source are credited.

Abstract

Corona virus has changed the way of life and generally effects the expectations of employees in what they expect from office environments while they are returning to the physical office. Since, their time in the office is limited after the pandemic and most of the workers should be in office on rotation, therefore worker in the partial of time should have maximum productivity. One of the major determinants of employee productivity is the indoor physical environment. Today, organizations can improve their outcomes significantly when adequate attention is paid to promote the indoor workplace environment. This research aims to examine the effect of the workplace environment on the productivity of employees working in the ARAB bank in Jordan. Primary data was used in a form of self-reporting questionnaires distributed to 382 employees of ARAB bank in Jordan, 322 were analyzed using the version 26 of SPSS software. Outcomes of the research reveal that the indoor environment has a compelling impact on the employees' self-assessed productivity. The research is carried out during the Corona virus pandemic hence it is shared that most employees were working from home during the data collection phase.

Keywords

Workplace • Productivity • Indoor physical environment • Pandemic period Jordan

Introduction

The advance in the various types of science such as medical science and architectural science has influenced and changed the way individuals view the built environment. At present, several research studies are being too conducted to address the effect of the workplace design on the occupants’ well-being and health. Hence, designing a building that maintains and promote health and well-being of the occupants is one of the fundamental goals for architects and interior designers that in turn will promote productivity. Productivity is a major concern of organizations, it consists of four dimensions: organizational, environmental, personal, and social. Productivity is defined in several ways: The outcomes generated by employees per hour, the ways in which companies transform inputs into outputs taking into consideration the efficiency of the process the environmental aspect refers to the physical environment of the workplace [1]. The physical environment is defined as the set of indoor features that has a direct or indirect effect on the individual's overall health and well-being and the individuals' productivity [2]. Researchers stated that The Output of the Organizations is significantly affected by the physical environment and the indoor environment in particular. A contribute office indoor environment where individuals feel comfortable and satisfied will promote the employees' productivity, however, an unfavourable environment with low quality will affect the employees' productivity negatively.

Office design is the way that elements are placed and arranged within the office to ensure effectiveness and efficiency in work processes [3]. Several subsequent studies expose the strong link between productivity and the indoor environment. A study suggests that modifications applied to an office resulted in an increase in productivity by up to 10% [4]. Moreover, a productive office environment is defined by the satisfaction and feelings of the occupants towards the indoor environment and the office design [5].

Several variables can be studied and analyzed to examine the quality of a workplace physical environment which exerts a substantial influence on productivity. Therefore, all types of organizations are concerned about improving and developing the indoor environment. A rigorous literature review revealed that some researchers identified several indoor variables linked to productivity which are: Interior ventilation and air quality, Thermal comfort, Daylighting, and artificial lighting, Noise and acoustics, Office layout, Indoor biophilia, Indoor aesthetics, and Location and amenities [6]. This paper regarding the ARAB bank in Jordan to evaluates the impact office design on the productivity of the employees.

The survey consists of questions for each variable and generally tries to understand the meaning of indoor air quality from the employee’s perspective (Figure 1).

civil-environmental-engineering-marble

Figure 1. Gradation curve of marble and fine aggregate.

Research Methodology

Research is based on self-administered questionnaire distributed and collected online. The questionnaire is derived from earlier studies following the Likert scale. Quantitative data was gathered using a survey of self-reported questionnaires which was distributed to employees of the Arab Bank in Jordan during the pandemic period. The aim of the questionnaire was to investigate the employees’ perceptions concerning the quality of their workplace indoor environment as well as measuring the impact of these workplace attributes on the performance of the employees using subjective information. The survey was developed based on the researches of Aqeel, Hameed and Haynes respectively [7-9]. The surveys include two sections: the first section is the demographics, and the second section is exclusive set of questions dedicated to each of the indoor attributes. Responses were recorded and analyzed by using version 26 of the SPSS software, and the results consist of description and analyses the Likert scale of our Questionnaire and the Regression analysis is reported to study the relationship between the Employees satisfaction towards the office design quality and the employees’ productivity. The questionnaire was distributed among 400 employees online on the March 2020 and retrieved in June 2020. 388 were retrieved but only 322 were accurate. The research is carried out during the Corona virus pandemic hence it is shared that most employees were working from home during the data collection phase. Also, it should be considered that replies were based on the comparison of the comfort at home and in the office environment since most of the employees were working online from home. Furthermore, social distancing was an initial concern in Bank of Jordan during pandemic period hence, this study just focuses on indoor environmental factors.

Dependent Variables: The performance of the employees in ARAB bank in Jordan.

Independent Variables: The factors of the workplace design are the independent variables of this study which are:

1. Indoor air quality and ventilation.

2. Thermal comfort.

3. Lightning and day lighting.

4. Noise and acoustics.

5. Office layout.

6. Biophilia and views.

7. Look and feel (Indoor aesthetics).

8. Location and amenities.

Analysis

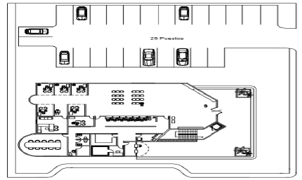
This research attempts to survey the plan of the Arab Bank building in Jordan. Quantitative data that was gathered by distributing self-report questioners to the employees in 15 main branches out of 26 branches has been examined. This researcher examines nine plans that the researcher was able to retrieve under the pandemic due to limited accessibility. Nine plans represent in Table 1, contain of the main ARAB bank buildings located in the cities of Amman, Al Zarqa, and Irbid. Table 1 disclose the advantage and disadvantage of each bank regarding to the indoor environmental factors.

Table 1: Case studies of Arab bank in Jordan.

Name Case studies Plan Advantages
Marka Street Branch. image Plan organization allows communication with colleagues, provides a wide view from the external environment since it has an open space.
The bank is located within a good location in the city.
  The bank does not have adequate natural ventilation since the number of windows is limited, however, the building is equipped with air conditioning to retain comfortable temperatures. Natural light is limited due to the few number of Windows, nevertheless, the building is equipped with high-quality artificial lighting.
Almadena Street Branch. image   The bank is formed of small offices that provide privacy to the employees and a quiet place to concentrate. The temperature is pleasant as it is equipped with a high-quality ventilation system. The bank includes car parking and it is situated in good location in the city.
The closed office spaces make it possible for the employees to communicate and reach their colleagues easily by considering the social distancing.
Aldostor Street Branch. image The bank contains sufficient natural ventilation and also it is equipped with air conditioning system. The bank also has sufficient access to natural light and similarly artificial lighting provides the bank. Lastly, it includes an adequate parking area and it is positioned within a good location in the city.
  The number of windows is limited so natural ventilation and lighting is not adequate, however, the building is equipped with air conditioning to keep comfortable temperatures. Nevertheless, building is equipped with high-quality artificial lighting. Some of the offices are so close to each other therefore social distancing can cause a difficulty in current situation.
ALzarqaa Street Branch. image   The Office is open spaces where allow easy communication and participation among the employees by considering social distancing. The Bank is situated a good location in the city.
  This bank does not have enough natural ventilation as the number of windows is limited, however, the building is equipped with air conditioning to retain comfortable condition.
Natural light is restricted due to the lack of windows, nevertheless, the building is equipped with high-quality artificial lighting.
The bank is positioned in the location of the city of Zarqa where does not have accessibility to all services such as restaurants, transportation, etc. Furthermore, it doesn't have adequate space for parking
Al-Husain Street Branch. image   The Office is open spaces where allow easy communication and participation among the employees by considering social distancing.  Also it has 2 close spaces which can be usable during corona by considering rotation timetable.
  The bank does not have adequate natural ventilation for the reason that the number of windows is limited. But, the building is equipped with air conditioning to keep comfortable temperatures.
Natural light is limited due to the lack of Windows, nevertheless, the building is equipped with high-quality artificial lighting.
The bank is located in a rural location in the city of Irbid, but it does not have an access to all services such as restaurants, transportation, etc.
Thirtieth Street Branch. image The office is open spaces that allow easy communication and participation among the employees by considering social distancing. The Bank is located a good place in the city.
  The bank does not have adequate natural ventilation as the number of windows is limited, however, the building is equipped with air conditioning to prepare comfortable condition.
Natural light is limited due to the lack of Windows, nevertheless, the building is equipped with high-quality artificial lighting.
The bank is located in a popular area in the city of Irbid, but it does have an access to the facilities such as restaurants, transportation, etc.
Jordan Street Branch. image The bank has sufficient number of windows which can transmit natural ventilation and lighting. It is also equipped with air conditioning system and high-quality artificial lighting.
The Bank contains both open spaces offices and closed which provides privacy and quiet time for the employees and also social distancing can easily be pertinent in that situation.
The bank is located in an important location in in the center of the city, Amman, where supports all facilities such as restaurants, transportation, and others. Furthermore, it has a parking area.
This Bank is one of the main buildings of the ARAB bank and has no disadvantages.
Amman Street Branch. image The building is equipped with air conditioning system also it contains a sufficient number of windows that allow natural ventilation and natural lighting besides the high-quality artificial lighting.
The Bank has a car parking area and it is located in the center of the city.
The bank is consisting of closed spaces which could be the best place for social distancing without considering the rotation time table.
This Bank has no disadvantages.
Albatraa Street Branch. image The bank is open spaces that allow the employees to communicate freely and easily.
This bank branch is located in the center of the city, Amman, and it has an access to all services such as restaurants, transportation, etc.
Disadvantage: the bank does not have natural ventilation and day lighting; however, the building is equipped with industrial air conditioning, and it is provided with artificial lighting.

After investigating on the plan of the case studies, this research began to do the analysis by distributing the questioners beyond the employees in the same branches. First, the main variables of the study are identified and then general overview of the criteria for choosing the sample and response rates will be done. Second, the factor analysis will be used for both exploratory factor analysis and confirmatory factor analysis. Also, normality will be utilized to show the distribution of the data and whether or not the data is reliable for the research. Third, demographic information of the research sample including gender, age, and qualification will be introduced. Forth, the results of the regression analysis and ANOVA tests will be included for each of the variables of the study. Therefore, the dependent variable and independent variable are identified as shown in Figure 2.

civil-environmental-engineering-Summary

Figure 2. Summary of the relationship between Independent and dependent variables.

Indoor Environmental Factors

Indoor air quality and ventilation

The elements used to analyze the satisfaction of the employees towards the indoor air quality and ventilation are presented in Figure 3.

civil-environmental-engineering-employees

Figure 3. Satisfaction of the employees towards the indoor air quality and ventilation.

The first factor consists of 4 Questions with means of (Q1=2.84) is smaller than 3 that is maximum rather than hypothesized value which indicates some degree of satisfaction but not to the hypothesized value of the highest satisfaction 5. (Q2=2.12) is also smaller than 3. (Q3=3.3) is slightly greater than 3. Lastly (Q4=2.99) is also smaller than 3 the hypothesized value which indicates some degree of satisfaction. While question five (Q5) will be calculated with question representing Productivity. Results of the first dimension ranged between (2.12 to 3.3) expressing some degree of satisfaction but not to the hypothesized value of the highest satisfaction 5. The results of this dimension necessitate major promotion to the Ventilation system concerning the temperature of the Office, the Humidity and dryness, and the placements of the furniture.

Thermal comfort

The analysis in Figure 4 presents the second variable which consists of five questions. Such as (Q6=2.63) is smaller than 3 the hypothesized value which indicates some degree of satisfaction but not to the hypothesized value of the highest satisfaction 5. (Q7=2.97), (Q8=2.96) and (Q9=2.99) are also smaller than 3. Lastly (Q10=3.00) is equal to 3 the hypothesized value which indicates natural degree of satisfaction. Results of the second dimension ranged between (2.63 to 3.00) stating some degree of satisfaction but not to the hypothesized value of the highest satisfaction 5.

civil-environmental-engineering-thermal-comfort

Figure 4. Satisfaction of the employees towards the thermal comfort.

Lighting and daylighting

The third variable consists of six questions as revealed in Figure 5 with means of (Q12=2.21) is smaller than 3 the hypothesized value which indicates some degree of satisfaction but not to the hypothesized value of the highest satisfaction 5. (Q13=2.47) and (Q14=2.78) are also smaller than 3. (Q15=3.00) is equal to 3. (Q16=3.16) is slightly greater than 3. (Q18=2.96) is slightly smaller than 3. Results of the Third factors ranged between (2.21 to 3.16) expressing some degree of satisfaction but not to the hypothesized value of the highest satisfaction 5.

civil-environmental-engineering-lighting

Figure 5. Satisfaction of the employees towards lighting and the day lighting.

Noise and acoustics

Variable four consists of four Questions with means of 3.26. (Q20=3.16) is slightly greater than 3 the hypothesized value which indicates some degree of satisfaction but not to the hypothesized value of the highest satisfaction 5. (Q21=3.25), (Q22=3.33) and (Q23=3.30) which are greater than 3. Question five (Q24) calculated with question representing Productivity. The Results of this Factor ranged between (3.16 to 3.33) that is higher than all the other factors. It is indicated that noise and acoustics are fairly acceptable within the ARAB bank offices. But not to with the hypothesized value of the highest satisfaction 5. The results necessitate major promotion to the noise and acoustics in terms of providing Quieter offices with undisturbed atmosphere and provide more privacy. The analysis of this factor is presented in Figure 6.

civil-environmental-engineering-acoustics

Figure 6. Satisfaction of the employees towards noise and acoustics.

Office layout

The fifth factor consists of four questions with (Q25=2.83) is slightly smaller than 3 by considering the hypothesized value which indicates some degree of satisfaction but not to the hypothesized value of the highest satisfaction 5. (Q26=2.82), (Q27=2.80) and (Q28=2.56) are smaller than 3. In addition, question five (Q29) will be calculated with productivity. The results of this factor ranged between (2.56 to 2.83) that signified the office layout of the ARAB banks is fairly acceptable. However, it is not close to the hypothesized value which highest satisfaction should be 5. Outcomes necessitate significant development to the Layout of the ARAB bank offices in terms of providing adequate places for unscheduled meetings. Furthermore, designing the sufficient spaces for employees working as groups is compulsory. The analysis of this factor is displayed in Figure 7. It should be mentioned that social distancing in Jordan was mandatory for the office layout during the pandemic hence the responses were based on that.

civil-environmental-engineering-Layout

Figure 7. Satisfaction of the employees towards the Layout of the ARAB bank offices.

Biophilia and views

Variable six consists of three Questions with means of (Q30=3.03) is slightly greater than 3 the hypothesized value which indicates some degree of satisfaction but not to the hypothesized value of the highest satisfaction 5. (Q31=3.25), (Q32=3.33) are smaller than 3. Question four (Q33) is calculated with a question representing Productivity. The Results of this Factor ranged 3.03 to 3.33. This factor is also high comparing to the other factors which indicate that the Biophilia and views of the ARAB banks are fairly acceptable. The results necessitate a significant development to the biophilia and views in terms of providing natural light, access to the outside view besides equipping the office by integrating natural features like wood, stone, and plants. The analysis of this variable is presented in Figure 8.

civil-environmental-engineering-Biophilia

Figure 8. Satisfaction of the employees towards Biophilia and views.

Look and feel (Indoor aesthetics)

Variable seven consists of three Questions with means of (Q34=2.94) is slightly smaller than 3. (Q35=3.18) is also slightly greater than 3 and (Q36=2.94) which is also smaller than 3. While Question four (Q37) will be calculated with a question representing Productivity. The Results ranged between (2.94 to 3.18) that indicate that the visual appearance and atmosphere (Indoor Aesthetics) of the ARAB banks are fairly satisfactory. Hence, architect should create spaces with more breakout, aesthetics, and more comfortable furniture for better considering the visual appearance and atmosphere (Indoor Aesthetics). The analysis is presented in Figure 9.

civil-environmental-engineering-feel

Figure 9. Satisfaction of the employees towards look and feel (Indoor aesthetics).

Location and amenities

The analysis of variables related to location and amenities is presented in Figure 10 which is consists of three questions with means of (Q38=2.85) is slightly smaller than 3 the hypothesized value which indicates some degree of satisfaction but not to the hypothesized value of the highest satisfaction 5. (Q39=2.83) and (Q40=2.63) are also smaller than 3. Question four (Q41) is calculated with the questions representing Productivity. Outcomes ranged between (2.63 to 2.85) that indicate that the location and Amenities of the ARAB banks are somewhat acceptable. But not to the highest satisfaction 5. Consequences necessitate a significant development in the Location and Amenities in terms of moving it to better Locations, and also providing adequate parking and more safe storage facilities.

civil-environmental-engineering-location

Figure 10. Satisfaction of the employees towards location and amenities.

The relationship between employee productivity and indoor environment

The Questionnaire Contains eight questions to measure weather the current indoor environment of the ARAB bank is affecting the employees positively based on the effect of each factor (Independent variables, Q5, Q11, Q19, Q24, Q29, Q33, Q37, Q41) on productivity (Figure 11).

civil-environmental-engineering-relationship

Figure 11. Summary of the relationship between Independent and dependent variables.

• Indoor air quality and ventilation: The adjusted R-squared=50 is the final output which means 50% variation in Productivity is explained by the independent variable. ANOVA is below 0.05, so there is a significant relationship between the independent and dependent variables. Coefficient (B) is the change in the dependent variable for every 1-unit of change in the Independent variable. So, with every Unit increase in Air quality and ventilation productivity will increase with +0.272.

• Thermal comfort: Adjusted R square=63%. ANOVA=0.00 (significant). (B=0.207): with every one unit increases in thermal comfort the productivity will increase by 0.207.

• Lighting & daylighting: Adjusted R square=42%. ANOVA=0.00 (significant). (B=0.116): with every one unit increases in Lighting & daylighting the productivity will increase by 0.116.

• Noises & acoustics: Adjusted R square=46%. ANOVA=0.00 (significant). (B=0.196): with every one unit increases in Noises & acoustics the productivity will increase by 0.196. Office layout Adjusted R square=49%. ANOVA=0.00 (significant). (B=0.237): with every one unit increases in Office layout the productivity will increase by 0.237.

• Biophilia & views: Adjusted R square=43%. The ANOVA=0.00 (significant). (B=0.271): with every one unit increases in Biophilia &views the productivity will increase by 0.271.

• Look and feel (Indoor Aesthetics): Adjusted R square equals=43%. The ANOVA=0.00 significant and the (B=0.261): with every one unit increases in Look and feel (Indoor Aesthetics) the productivity will increase by 0.261.

• Location and Amenities: Adjusted R square=39%. ANOVA=0.00 (significant). (B=0.256): with every one unit increases in Location and Amenities the productivity will increase by 0.256.

Discussion

This research endeavored to investigate the relationship between the workplace indoor physical environment and employees’ productivity. The Factors Descriptive statistics were found to have a significant influence on the Productivity of employees. Outcome of this paper emphasized the importance of the indoor environment to productivity in the pandemic period. The regression coefficients for all of the predictor variables were positive indicating that the better the perception of the indoor attribute, the higher the employees’ performance will be. Therefore, it is recommended that for having better productive of the employee after pandemic period, improvements of the workplace environment will contribute positively to the performance of the employees. Since they have limited time in office because of corona virus. However, several key issues must be noted about the data and the results. The data was based on employees’ perceptions which is affected by several factors including age and education as well as social factors and culture, furthermore, the personal control that the employees have over their workplace environment substantially affect their perceptions. The findings of this study are limited by the fact that it covered 388 of the employees working only in the bank sector in Jordan. Work space environment play a significant impact on the productivity of employees. Thus, creating an appropriate office design by considering the indoor built environment could be beneficial for the organization and also the wellbeing of employees after turning back to their office because of COVID-19.

Conclusion

Respondents agreed that the physical environment has a moderate impact on the overall productivity. The Productivity of the ARAB bank employees in Jordan can be promoted by a conducive indoor environment and office design. There is a significant relationship between employees’ productivity and the physical environment. However, this relationship is somewhat weak because of the current environment design of the ARAB banks the design of which was based the pre-pandemic period. This research illustrates that organization plays a significant impact on output by creating appropriate office design. The appropriate office design by considering the limited of time that employees will spend in there should include the appropriate ventilation systems with good adjustable temperature, acoustic control, noise transmission prevention, flexible spaces and add more windows that assist both more natural light and fresh air. Also, it should be mentioned that, opening should have shading system to control the effect of sun radiation during different season of a year. Indoor environment should be taken into deliberation by facing with COVID-19 where achieving the highest productivity during this time is crucial for companies. Further studies could examine the variables that have effect on employees' performance in the workplace. Renovating the work space to provide comfortable conditions by considering indoor environmental quality is the responsibility of architects during the pandemic period which permits organizations to improve the performance in employees. The future study of this reach could be focused on general layout of offices after pandemic since open office increased the likelihood of transmission.

References

Google Scholar citation report
Citations: 1798

Journal of Civil and Environmental Engineering received 1798 citations as per Google Scholar report

Journal of Civil and Environmental Engineering peer review process verified at publons

Indexed In

 
arrow_upward arrow_upward